COMPLEXE SAINT-LOUIS
This is custom heading element
Présentation du COMPLEXE SAINT-LOUIS
Situé au cœur de la ville historique de Saint-Louis, le COMPLEXE SAINT-LOUIS est un projet ambitieux et multifonctionnel qui vise à redéfinir le paysage urbain de la région. Ce complexe moderne et intégré réunira plusieurs pôles d’activités et de vie, offrant une expérience unique aux résidents, visiteurs et professionnels.
Hôtel : Un établissement haut de gamme pour accueillir touristes et voyageurs d’affaires, avec des services de qualité internationale.
Centre Commercial : Un espace dynamique regroupant boutiques, restaurants, et services pour répondre aux besoins du quotidien et du shopping.
Centre Sportif : Des installations modernes pour la pratique du sport et du bien-être, incluant gymnase, terrains multisports et espaces de remise en forme.
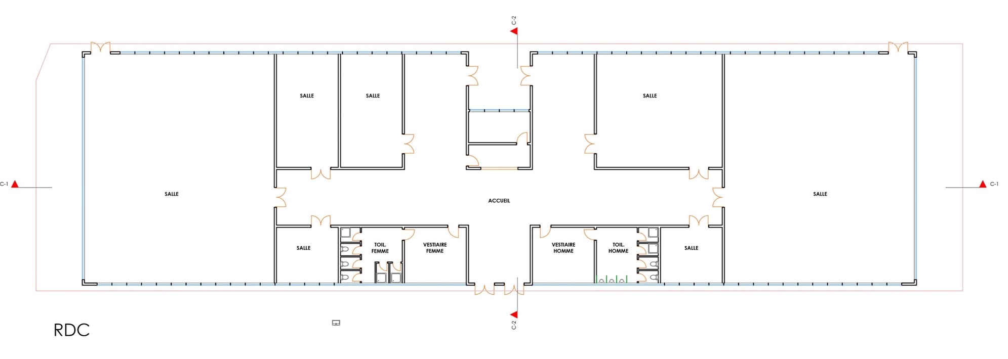
École : Un établissement éducatif innovant, adapté aux standards contemporains, pour accueillir les élèves de la maternelle au secondaire.
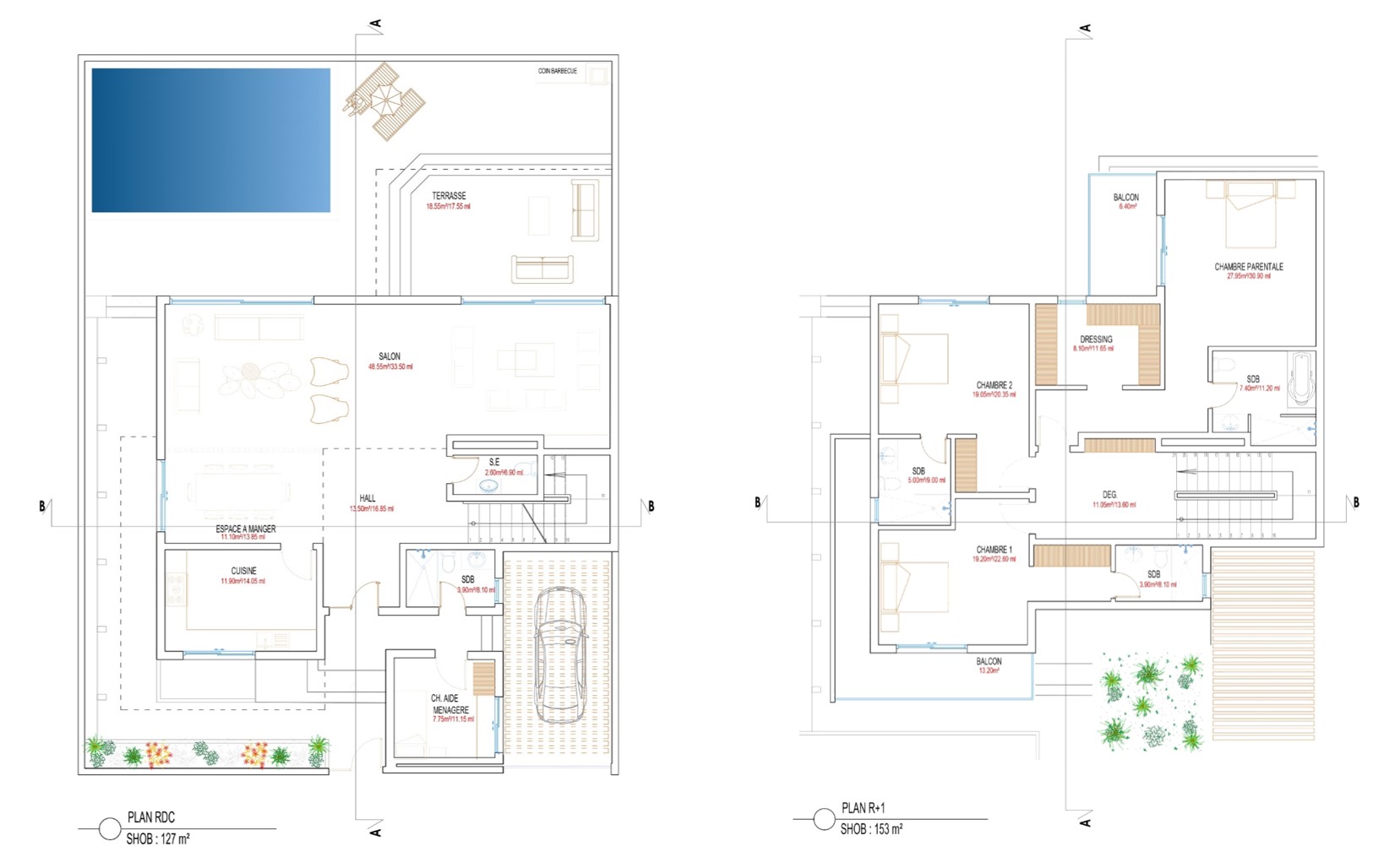
Villas : Un quartier résidentiel sécurisé composé de villas élégantes, offrant confort et tranquillité dans un cadre verdoyant.
Bureaux : Des espaces professionnels modulables, conçus pour favoriser l’entrepreneuriat, l’innovation et le développement économique local.
Plans du Complexe


Centre Sportif Composé de terrains de Football, de Basket, de Tennis et de Pétanque.

Programmer une visite




Commodités
Démarrer votre projet en nous contactant
Autres Programmes

Les Perles de Demeth
La Résidence vous accueille dans un cadre de vie idyllique avec toutes les commodités. Idéalement située proche des Almadies et de la Corniche, contiguë à l’aéroport Léopold Sédar Senghor et à la future cité des affaires.











